JYWQ系列自動攪勻潛水排污泵
JYWQ、JBWQ、JPWO系列自動攪勻排污泵是在普通排污泵的基礎上采用自動攪拌裝置,該裝置隨電機軸旋轉,產生極強的攪拌力,將污水池內的沉積物攪拌成懸浮物,吸入泵內排出,提高了泵的防堵、排污能力,一次性完成了排水、清污、除淤、節約了運行成本,是具有明顯的先進性和用性的環保產品。注:JYWQ、JBWQ為普通型自動攪勻排污泵;JPWQ為帶不銹鋼外套內循環冷卻系統自動攪勻排污泵。
JYWQ自動攪勻排污泵主要特點
1.當自動攪勻排污泵運轉時,自動攪拌池底沉積物,徹底防止污物淤積,無須人工清理;
2.獨特的葉輪設計,具有將纖維物、雜物切碎和撕裂的功能;
3.采用外循環冷卻系統,使排污泵低水位運轉,減少電機起動頻率,延長電機壽命; 4.國家標準圖集推薦產品;
5.上海市高新技術成果轉化產品。
JYWQ自動攪勻排污泵型號意義:
例:80JYWQ50-10-1600-3 80-排出口徑(mm)JYWQ-自動攪勻排污泵 50-流量(m3/h) 10-揚程(m) 1600-攪勻范圍(mm) 3-電機功率(KW)
JYWQ自動攪勻排污泵主要用途
1.工廠、商業嚴重污染廢水的排放。2.城市污水處理廠、醫院、賓館的排水系統。3.住宅區的污水排水站。4.人防系統排水站、自來水廠的給水裝置。5.市政工程、建筑工地。6.勘探、礦山、發電廠配套附機。7.農村沼氣池、農田灌溉、河塘清淤。
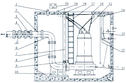
JYWQ自動攪勻排污泵結構簡圖
|
|
||||||||||||||||||||
|
1 |
主電纜 |
2 |
機殼 |
3 |
內循環套 |
4 |
油箱 |
5 |
副葉輪 |
6 |
葉輪 |
7 |
泵體 |
|
8 |
底座 |
9 |
隔板 |
10 |
油水控頭 |
11 |
機械密封 |
13 |
攪拌件 |
- |
- |
- |
JYWQ自動攪勻排污泵性能參數表
|
序號 |
型號 |
排出 |
額定 |
額定 |
攪拌 |
轉速 |
效率 |
自動 |
|
1 |
JYWQ50-12-15-1200-1.5 |
50 |
12 |
15 |
1200 |
2900 |
48 |
CAK-50 |
|
2 |
JYWQ50-20-7-1200-1.1 |
50 |
20 |
7 |
1200 |
2900 |
62 |
CAK-50 |
|
3 |
JYWQ50-10-10-1200-1.1 |
50 |
10 |
10 |
1200 |
2900 |
56 |
CAK-50 |
|
4 |
JYWQ50-15-15-1200-2.2 |
50 |
15 |
15 |
1200 |
2900 |
51 |
CAK-50 |
|
5 |
JYWQ50-25-10-1200-2.2 |
50 |
25 |
10 |
1200 |
2900 |
65 |
CAK-50 |
|
6 |
JYWQ50-15-20-1200-2.2 |
50 |
15 |
20 |
1200 |
2900 |
56 |
CAK-50 |
|
7 |
JYWQ50-20-15-1200-2.2 |
50 |
20 |
15 |
1200 |
2900 |
56 |
CAK-50 |
|
8 |
JYWQ50-42-9-1200-3 |
50 |
42 |
9 |
1200 |
2900 |
56 |
CAK-50 |
|
9 |
JYWQ50-17-25-1200-3 |
50 |
17 |
25 |
1200 |
2900 |
56 |
CAK-50 |
|
10 |
JYWQ50-25-22-1200-4 |
50 |
25 |
22 |
1200 |
2900 |
62 |
CAK-50 |
|
11 |
JYWQ50-40-15-1400-4 |
50 |
40 |
15 |
1400 |
2900 |
70 |
CAK-50 |
|
12 |
JYWQ50-25-32-1600-5.5 |
50 |
25 |
32 |
1600 |
2900 |
52 |
CAK-50 |
|
13 |
JYWQ50-40-30-1600-7.5 |
50 |
40 |
30 |
1600 |
2900 |
68 |
CAK-50 |
|
14 |
JYWQ65-25-15-1400-3 |
65 |
25 |
150 |
1400 |
2900 |
65 |
CAK-65 |
|
15 |
JYWQ65-37-13-1400-3 |
65 |
37 |
13 |
1400 |
2900 |
62 |
CAK-65 |
|
16 |
JYWQ65-25-28-1400-4 |
65 |
25 |
28 |
1400 |
2900 |
60 |
CAK-65 |
|
17 |
JYWQ80-40-7-1600-2.2 |
80 |
40 |
7 |
1600 |
2900 |
54 |
CAK-80 |
|
18 |
JYWQ80-29-8-1600-2.2 |
80 |
29 |
8 |
1600 |
2900 |
54 |
CAK-80 |
|
19 |
JYWQ80-43-13-1600-4 |
80 |
43 |
13 |
1600 |
2900 |
63 |
CAK-80 |
|
20 |
JYWQ80-50-10-1600-3 |
80 |
50 |
10 |
1600 |
1450 |
76 |
CAK-80 |
|
21 |
JYWQ80-40-15-1600-4 |
80 |
40 |
15 |
1600 |
2900 |
70 |
CAK-80 |
|
22 |
JYWQ80-60-13-1600-4 |
80 |
60 |
13 |
1600 |
2900 |
70 |
CAK-80 |
|
23 |
JYWQ80-35-25-1600-5.5 |
80 |
35 |
25 |
1600 |
2900 |
64 |
CAK-80 |
|
24 |
JYWQ80-50-25-1600-7.5 |
80 |
50 |
25 |
1600 |
2900 |
70 |
CAK-80 |
|
25 |
JYWQ80-50-30-1600-7.5 |
80 |
50 |
30 |
1600 |
2900 |
70 |
CAK-80 |
|
26 |
JYWQ100-80-9-2000-4 |
100 |
80 |
9 |
2000 |
1450 |
62 |
CAK-100 |
|
27 |
JYWQ100-110-10-2000-5.5 |
100 |
110 |
10 |
2000 |
1450 |
71 |
CAK-100 |
|
28 |
JYWQ100-70-15-2000-5.5 |
100 |
70 |
15 |
2000 |
1450 |
71 |
CAK-100 |
|
29 |
JYWQ100-100-15-2000-7.5 |
100 |
100 |
15 |
2000 |
1450 |
73 |
CAK-100 |
|
30 |
JYWQ100-80-20-2000-7.5 |
100 |
70 |
20 |
2000 |
2900 |
71 |
CAK-100 |
|
31 |
JYWQ100-50-35-2000-11 |
100 |
100 |
35 |
2000 |
2900 |
68 |
CAK-100 |
|
32 |
JYWQ100-70-22-2000-7.5 |
100 |
80 |
22 |
2000 |
2900 |
70 |
CAK-100 |
|
33 |
JYWQ100-100-22-2000-15 |
100 |
150 |
22 |
2000 |
1450 |
61 |
CAK-100 |
|
34 |
JYWQ100-80-30-2000-15 |
100 |
210 |
30 |
2000 |
1450 |
67 |
CAK-100 |
|
35 |
JYWQ150-150-10-2000-7.5 |
150 |
250 |
10 |
2000 |
1450 |
75 |
CAK-150 |
|
36 |
JYWQ150-210-7-2500-7.5 |
150 |
150 |
7 |
2500 |
1450 |
78 |
CAK-150 |
|
37 |
JYWQ150-250-6-2500-7.5 |
150 |
200 |
6 |
2500 |
1450 |
79 |
CAK-150 |
|
38 |
JYWQ150-150-15-2500-11 |
150 |
65 |
15 |
2500 |
1450 |
79 |
CAK-150 |
|
39 |
JYWQ150-200-10-2500-15 |
150 |
180 |
10 |
2500 |
1450 |
73 |
CAK-150 |
|
40 |
JYWQ150-65-40-3200-18.5 |
150 |
150 |
40 |
3200 |
1450 |
58 |
CAK-150 |
|
41 |
JYWQ150-180-22-2600-18.5 |
150 |
110 |
22 |
2600 |
1450 |
75 |
CAK-150 |
|
42 |
JYWQ150-150-26-2600-18.5 |
150 |
300 |
26 |
2600 |
1450 |
72 |
CAK-150 |
|
43 |
JYWQ150-110-30-2600-18.5 |
150 |
130 |
30 |
2600 |
1450 |
72 |
CAK-150 |
|
44 |
JYWQ150-300-15-2600-22 |
150 |
100 |
15 |
2600 |
1450 |
76 |
CAK-150 |
|
45 |
JYWQ150-130-30-2600-22 |
150 |
300 |
30 |
2600 |
1450 |
70 |
CAK-150 |
|
46 |
JYWQ150-100-40-3000-30 |
150 |
250 |
40 |
3000 |
1450 |
64 |
CAK-150 |
|
47 |
JYWQ200-300-7-3000-11 |
200 |
300 |
7 |
3000 |
1450 |
75 |
CAK-200 |
|
48 |
JYWQ200-250-11-3000-15 |
200 |
250 |
11 |
3000 |
1450 |
72 |
CAK-200 |
|
49 |
JYWQ200-300-10-3000-15 |
200 |
300 |
10 |
3000 |
1450 |
75 |
CAK-200 |
|
50 |
JYWQ200-250-15-3000-18.5 |
200 |
250 |
15 |
3000 |
1450 |
72 |
CAK-200 |
|
51 |
JYWQ200-400-10-3000-22 |
200 |
400 |
10 |
3000 |
1450 |
75 |
CAK-200 |
|
52 |
JYWQ200-200-20-3000-22 |
200 |
200 |
20 |
3000 |
1450 |
73 |
CAK-200 |
|
53 |
JYWQ200-250-22-3000-30 |
200 |
250 |
22 |
3000 |
1450 |
73 |
CAK-200 |
|
54 |
JYWQ250-600-7-3000-22 |
250 |
600 |
7 |
3000 |
1450 |
78 |
CAK-250 |
|
55 |
JYWQ250-600-9-3000-30 |
250 |
600 |
9 |
3000 |
1450 |
78 |
CAK-250 |
JYWQ自動攪勻排污泵使用注意事項
(1)運轉前應用兆歐表檢查電機定子繞組對地的絕緣電阻,低不得少于50兆歐。(2)檢查電纜有無破損、折斷等現象。如有損傷須及時更換,以免漏電;電纜截面應與電流相匹配。
(3)電壓超過額定電壓的±10%時,不得啟動電泵。
(4)以保證使用安全,必須將四芯電纜中的接地線可靠接地,以防發生觸電事故。
(5)電泵潛入水中時,應垂直起吊,不允許橫放著地,更不能陷入污泥中。停止使用時應將電泵吊起清洗干凈,置于干燥處,并注意防凍。
(6)禁止將電纜作為安裝起吊繩使用。
(7)檢查轉子運轉方向,從上向下看應為順時針方向旋轉。
(8)室外的開關或接線端應有防雨、防潮措施,濕手或赤足時禁止觸及開關,防止觸電。
(9)移動電泵時,必須切斷電源,電泵在運行時人不得接觸水源,以防漏電發生人身事故。
(10)嚴禁電機缺相運轉,如發現保險絲熔斷,應檢查原因后方可繼續使用,不得任意加粗保險絲。
(11)泵運轉時,應有專人管理,如發現有不正常現象應立即停機檢查,排除故障。(指末配全自動保護柜的情況)。
(12)電泵在規定的工作介質條件下正常運行半年后,應檢查油室密封狀況,如油室中的油呈乳狀或有水沉淀,應及時更換10~20號機械油和機械密封。對于在惡劣工作條件下使用的電泵,更應經常檢修。
(13)用戶應根據實際使用的工況選擇合適的流量揚程,以達到佳使用效果,泵銘牌或說明書上所示參數為該佳使用工況點,用戶可選在(0.7~1.2)倍佳流量內使用,禁止超流量使用,否則流量過大,揚程過低容易使電機過載。
JYWQ自動攪勻排污泵故障的原因及解決方案
|
故障現象 |
原因分析 |
排除方法 |
|
JYWQ自動攪勻排污泵不能啟動與運轉 |
電壓太低 |
調節電壓或電壓正常時工作 |
|
葉輪被雜物卡住 |
清除雜物 |
|
|
螺帽或平鍵損壞致使葉輪打滑 |
更換損壞零件 |
|
|
JYWQ自動攪勻排污泵超負荷 |
轉子部件卡滯或過流部件被異物卡住 |
重新裝配、清除異物 |
|
軸承損壞、軸變形 |
更換軸承、校正軸 |
|
|
JYWQ自動攪勻排污泵流量不足 |
吸入口或輸出管被阻 |
清除雜物,保證暢通 |
|
電機轉速低于額定轉速 |
提高轉速 |
|
|
葉輪打壞 |
更換葉輪 |
|
|
揚程過高 |
降低揚程 |
|
|
旋向相反 |
改換轉向 |
|
|
介質太稠或供應量不暢通 |
沖稀介質,增大供應量 |
|
|
JYWQ自動攪勻排污泵噪聲與振動 |
葉輪與泵體有磨擦 |
檢查泵的裝配并進行調整 |
|
軸承損壞或少油 |
更換軸承或加油 |
|
|
螺帽松動 |
更換螺帽 |
|
|
泵體中有雜物 |
清除雜物 |
|
|
吸入口有空氣滲入 |
控制低水位 |
JYWQ自動攪勻排污泵自動藕合式安裝示意圖
|
|
|
JYWQ自動攪勻排污泵自動藕合式安裝平面圖
JYWQ自動攪勻排污泵性能曲線圖
JYWQ自動攪勻排污泵使用條件
1、介質溫度不超過60℃,介質重度為1~1.3kg/dm3,PH值在4~10范圍內。2、1Cr18Ni9ti不銹鋼材質可適用各種腐蝕性介質。
注:用戶如有特殊的介質、溫度等要求,請要訂貨時注明輸送介質詳細情況,以便本公司提供更為可靠之產品。
訂貨須知:
一、①自動攪勻潛水排污泵產品名稱與型號②自動攪勻潛水排污泵口徑③自動攪勻潛水排污泵揚程(m)④自動攪勻潛水排污泵流量⑤自動攪勻潛水排污泵電機功率(KW)⑥自動攪勻潛水排污泵轉速(r/min)⑦自動攪勻潛水排污泵電壓〔V〕⑧自動攪勻潛水排污泵吸程(m)⑨自動攪勻潛水排污泵是否帶附件以便我們的為您正確選型。
二、若已經由設計單位選定我公司的自動攪勻潛水排污泵產品型號,請按自動攪勻潛水排污泵型號直接向揚子江泵業公司銷售部訂購。
三、當使用的場合非常重要或環境比較復雜時,請您盡量提供設計圖紙和詳細參數,由我們揚子江泵業的技術專家為您審核把關。
感謝您訪問我們揚子江泵業的網站【www.nwarestoration.com】,如有任何疑問.您可以致電給我們,我們一定會盡心盡力為您提供優質的服務。





