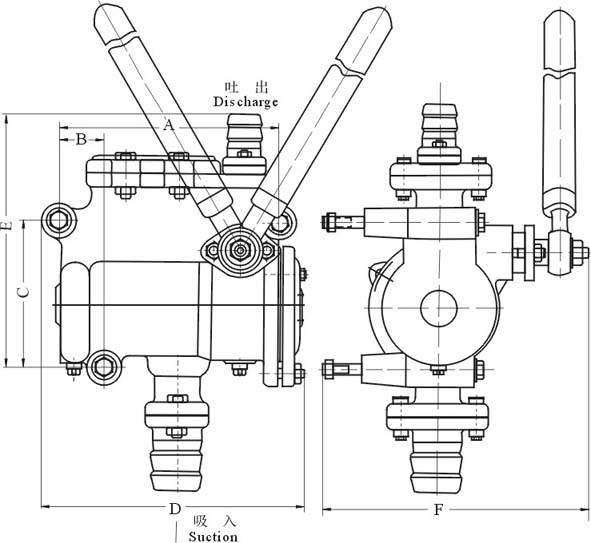
S、SH-25、38型手搖泵結構示意圖
時間:2013-5-27 來源:揚子江泵業 瀏覽數:3673
一、 產品概述
本型手搖泵適用于抽吸清水、汽油、煤油及對鐵和銅等無腐蝕性之液體,不適用于含有纖維或其它固體顆粒之液體。抽吸液體之溫度在60℃以下(系指皮碗式泵)。其性能范圍;流量為15-59升/分,大揚程為30米。
本型手搖泵結構緊湊,式樣大方美觀,使用方便可靠,只需1-2人用手往復搖動搖手柄即可工作。可供工礦、企業、學校、車輛、船舶等單位使用。
目前所制造的本型泵有:S-25、S-38及SH-25、SH-38等四種。
泵型號的意義:如S-38、SH-38
S-為皮碗式,適用于吸送清水
SH-為活塞式,適用于吸送油類液體
38-為泵之吸入及吐出口直徑單位毫米
二、結構示意圖 三、零件名稱及編號 四、結構說明 本型泵的結構原理是,當用手往復搖動搖手柄(29)時,通過軸(21)、搖臂(9)、 五、主要性能規范 六、檢修內容 1、調換活塞環及皮碗 ②所使用的手搖泵為皮碗式時,將泵蓋拆掉,看皮碗是否有所損壞,因為皮碗是用牛皮做成的,在使用一個時期很可能磨損,破裂, 2、檢查吸壓水閥 檢查水閥的關鍵問題,須檢查閥與閥座是否密合,即使用一段時間后,可能已被磨損腐蝕不平, 七、安裝示意圖 八、外形安裝尺寸表
連桿(36)等傳動機構,使活塞(7)作往復運動。如圖所示,當活塞向左移動時,右端的泵缸體積逐漸擴大,形成真空,液體從吸水管(34)經過鑄在泵體旁邊的吸入流道頂開吸水閥進入缸體右端。在同一時間里,缸體左側由于活塞的壓縮,使壓水閥(5)頂開,液體經吐出管(11)排出。若活塞的運動方向返回向右時,則泵缸左側吸入液體,泵缸右側排出液體,這樣往復不歇地把液體吸入排出。形成泵的工作。泵的壓水閥向上行程由蓋板(6)限止,吸水閥向上行程由壓水閥限止。蓋板與泵體用螺栓(8)緊固,活塞行程由泵蓋(14)和泵體限止。
為了安裝在墻上或其它基礎上,泵體有三個螺栓孔。
①所使用的手搖泵為活塞式時;先將泵蓋拆除,拆下活塞環,倘發現磨損過多,
則掉換活塞環,倘活塞環彈性降低,不能與水泵體壁貼牢而間隙過大,則亦必須掉換活塞環,檢查活塞環是否與汽缸壁服貼,
可用漏光或漏水試驗測定。
因此須換新的皮碗。
每臺水搖泵有四只水閥,即吸水閥及壓水閥各二只,都裝在泵體上,只要拆除蓋板螺母,就可取出(參看水閥示圖)。

而造成漏水,因此在檢修時須將閥拆開檢查,倘已發現不平,則須用研磨砂研磨,閥與閥座接合處光潔度為△8。


感謝您訪問我們揚子江泵業的網站www.nwarestoration.com,如有任何水泵疑問我們一定會盡心盡力為您提供優質的服務.
- 下一篇:常用清水泵的分類及正確的使用方法
- 上一篇:QW潛水排污泵耦合裝置尺寸圖
